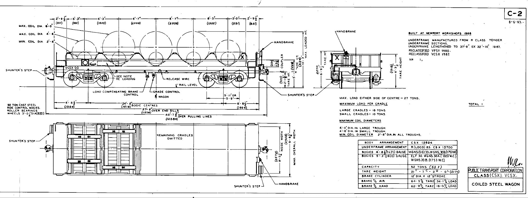
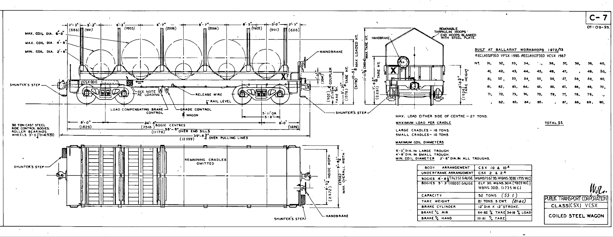
CSX coil steel wagons

|
Slab steel was transported to BHP's Lysaght's siding south of Frankston. Here it was cold rolled into thin sheetmetal to be used mainly in the production of automobiles. The CSX's transported this coil steel, mainly to interstate car plants in South Australia. Special trains ran between Melbourne and Lysaght's siding, in Melbourne the loaded CSX's were attached to interstate freight trains. When loaded, tarpaulins usually covered the coiled steel to prevent rust. Numbers 1 - 30 were built using underframes from scrapped R class steam locos and had ratchet handbrakes. 31 - 90 were built new and had miner (wheel) handbrakes. | |||||||||||||||||
ABOVE: CSX 6 at Dynon bogie exchange, July 1977
Photo courtesy Rob O'Regan
ABOVE: CSX 12, canal yard, April 1977
Photo courtesy Rob O'Regan

ABOVE: CSX 14 at Sth Dynon. June 23 1978
ABOVE: CSX 14 at Nth Geelong yard. July 7 1978
Photo courtesy Geoff Winkler

ABOVE: CSX 16 at Albion (on SG) Sept 1978.

CSX 17 at Albion (on SG) Sept 1978.
CSX 18 at Sth Dynon June 23 1978
CSX 23 at Sth Dynon June 23 1978
CSX 26 at Sth Dynon June 23 1978

ABOVE: CSX 27 at Sth Dynon June 23 1978. (note the spoked wheel)

CSX 29 at Albion (on SG) Sept 1978.
(Note part of the bulkhead missing)

ABOVE & BELOW: CSX 31 at Albion (on SG) Sept 1978.
CSX 31 was the first of the 2nd group, this group was built new and featured a Miner (wheel) handbrake.


CSX 34 at Nth Melb workshops, 1978.

CSX 36 at Nth Melb workshops March 1978.

CSX 55 showing a load of coil steel with the bulkheads removed, most coil steel was "tarped" which required the bulkheads being fitted.
Photo courtesy Kent Smiley

CSX 59 at Bendigo having just been painted and lifted, July 8 1978.

CSX 60 at Albion (on SG) Sept 1978.

CSX 71 at Nth Geelong yard. April 12 1978
Photo courtesy Geoff Winkler

CSX 80 at Sth Dynon June 23 1978
CSX 84 at Sth Dynon June 23 1978

BELOW: CSX 1 upon delivery, numbers 1 - 30 were built from R class steam loco tenders and were later strengthened by adding steel to the underframe. Photo courtesy Victorian Railways


![]() |
![]() |
![]() |
![]() |
|||||
Page last updated